Projects
INTERIOR DESIGN
FILM & TV
ART
Services
Shop
About
Credits
News
Contact
Projects
INTERIOR DESIGN
FILM & TV
ART
Services
Shop
About
Credits
News
Contact
Projects
INTERIOR DESIGN
FILM & TV
ART
Services
Shop
About
Credits
News
Contact
Projects
INTERIOR DESIGN
FILM & TV
ART
Services
Shop
About
Credits
News
Contact
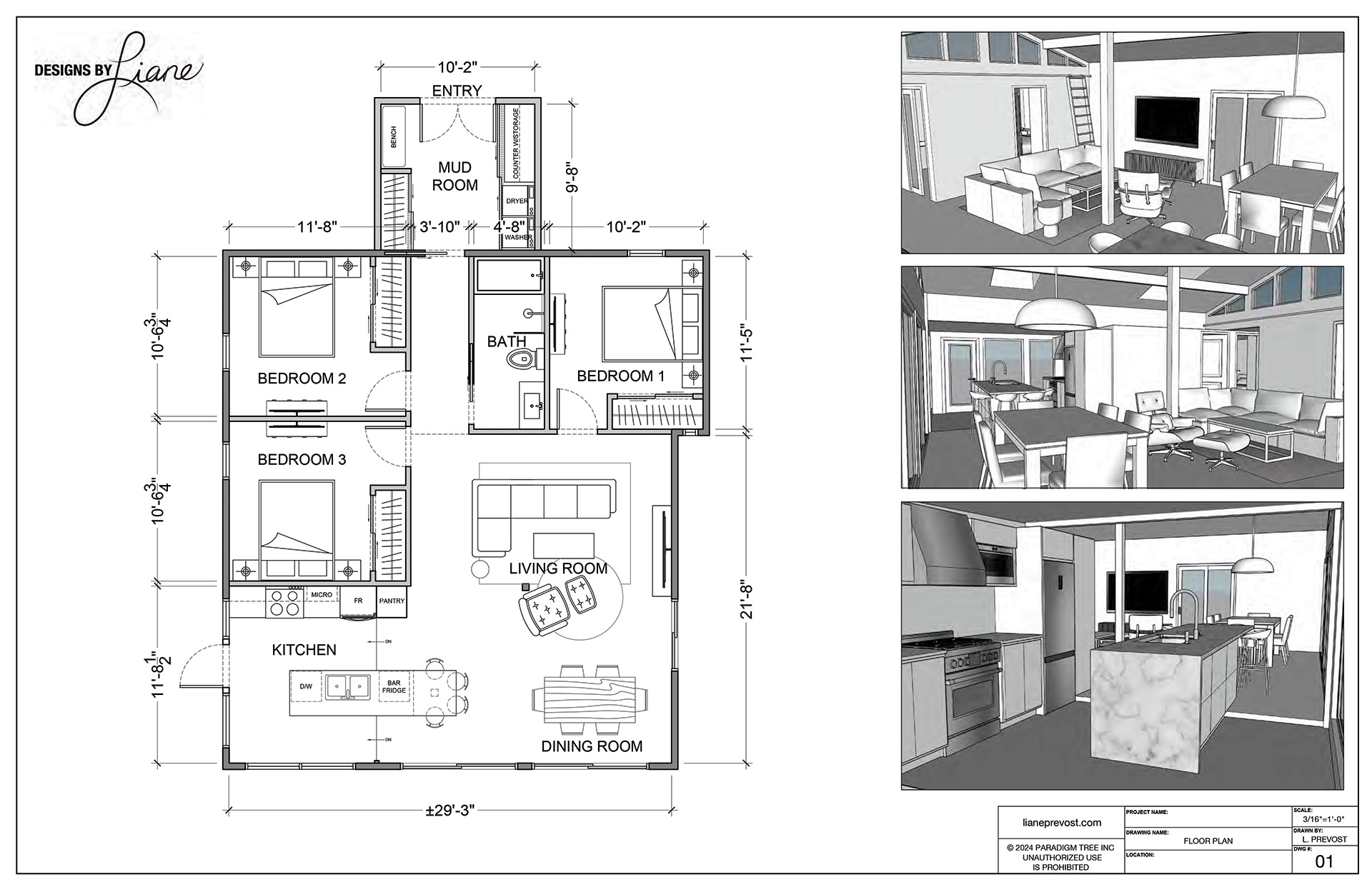
INTERIOR DESIGN PROJECTS
Cottage Retreat – Stillness & Light
| Residential (Concept)
Back to Interior Design
Prev
Previous
Urban Condo
Next
Bus Conversion
Next